+0
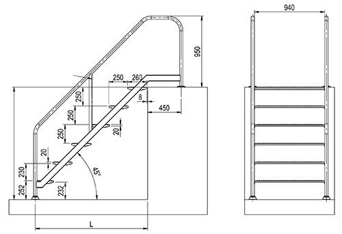
Stepenice za javne bazene proizvedene od nehrđajućeg čelika AISI-316L. Polirana završna obrada i protuklizna gazišta.
Izrađen od nehrđajućeg čelika AISI-316.
Polirana završna obrada.
Protuklizna brušena gazišta.
Proizvedeno prema EN 13451-2

